Home
About
Works
Services
Contact
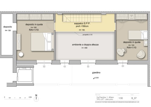
Project
via Prandina, 1 Milano