Home
About
Works
Services
Contact
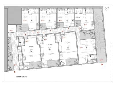
Project
via Gluck, 45 Milano