Home
About
Works
Services
Contact
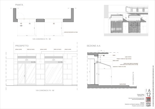
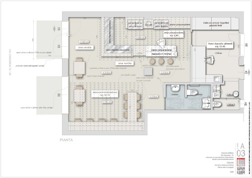
Project
via Canonica, 74 Milano